00件
最近見た物件
00件
検討リスト
5台分は駐車スペースが空いております。2駅利用できる立地となっていて、アクセスが良いです。2ヶ所にトイレがあります。車にいたずらされにくい、敷地内駐車場の空きがあります。賃料は22万円です。敷金1ヵ月分が初期費用に含まれます。初期費用として礼金は1ヶ月分かかります。

| 所在地 | 京都府相楽郡精華町桜が丘4丁目23-4 | ||
|---|---|---|---|
| 交通 | |||
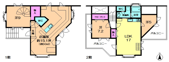
| 坪数(面積) | 43.09坪(142.47㎡) | ||
| 賃料/坪単価 | 22万円/0.51万円 | 管理費・共益費 | - |
| 敷金/礼金/保証金 | 20万円/22万円/- | 償却/敷引 | -/- |
| 更新料 | - | 権利金/雑費 | -/- |
| 造作譲渡金 | - | 駐車場/月額料金 | 有(5台)/0円 縦列駐車2台分含む。近隣駐車場約45mに月額¥5500円あり。 |
| 保険加入/料金 | 有/- | 保険名/保険期間 | -/- |
| 保証人代行義務/利用料 | 必加入/ 初回保証料賃料総額100%、毎月賃料総額の10%継続保証料 | 保証会社 | 全保連 |
| 保証会社詳細 | - | 向き | 南 |
| 築年月(築年数) | 1998年 10月 (築27年) | 契約期間 | 2年 |
| 種別/構造 | 住宅付店舗戸建/木造 | 用途地域 | 第一種低層住居専用 |
| 部屋/所在階/階建 | -/1-2階/2階建 | 総戸数 | 1戸 |
| 現況/引渡時期 | 居住中/2026年02月中旬予定 | 取引態様 | 専任媒介 |
| 物件番号 | 99091130 | 取引条件の有効期限 | 2025年12月23日 |
| 設備条件 |
|
||
| 備考 | 駐車場に空きがあるので車を駐車するスペースにお困りの方にもお薦めです。賃料は22万円です。バス停が徒歩3分圏内にございます。トイレが2ヶ所にあります。2駅利用できる場所にあり、アクセスが便利です。初期費用として礼金1ヵ月分がかかります。敷金1ヵ月分が初期費用に含まれます。近隣駐車場約45mに月額¥5500円月極駐車場あり。 | ||
| 取扱会社 |
|
||
| QRコード |
このQRコードを読み取ることで、スマホでも物件情報を確認できます。 |
||
※地図上に表示される物件の位置は付近住所に所在することを表すものであり、実際の物件所在地とは異なる場合がございます。
相楽郡精華町桜が丘4丁目の住宅付店舗戸建に関するこだわり条件から探す
相楽郡精華町の町名から探す